Aktuelle Projekte




Mehrfamilienhaus in Gauting
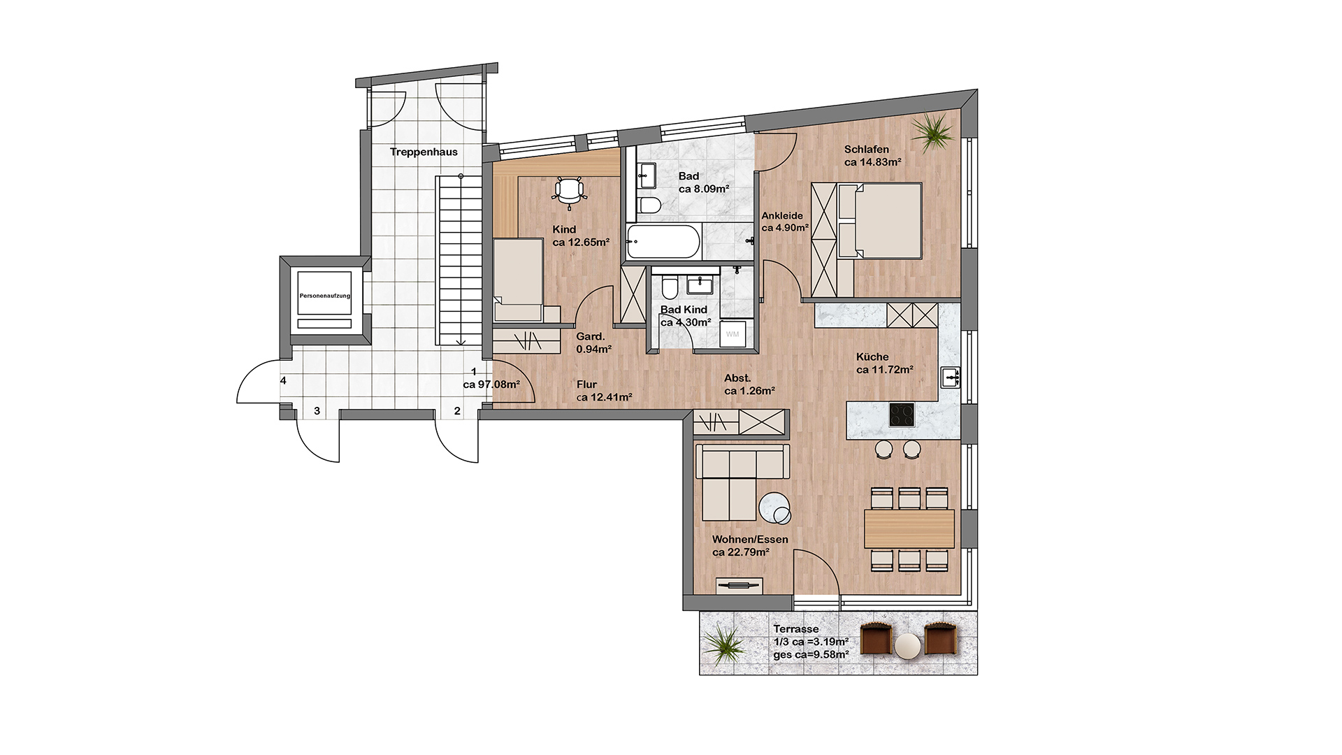
Auf dem ca. 1.014 m² großen Grundstück in Gauting entsteht im Zuge des Neubauprojekts „Zacherl 5“ ein hochwertiges Mehrfamilienhaus mit 9 Wohneinheiten und einer Tiefgarage. Bei den Wohneinheiten handelt es sich um gut geschnittene 2 bis 4-Zimmer Wohnungen jeweils mit Terrasse, Balkon oder Dachterrasse.
Das Objekt befindet sich auf der Anhöhung Buchendorfer Berg und bietet dadurch einen wunderbaren Weitblick über die Dächer von Gauting!
Das Mehrfamilienhaus besticht durch seine schöne Lage mit Blick über Gauting und seine Architektur, im zeitgemäßen und modernen Baustil. Die Bauqualität und Ausstattung der Wohnungen entsprechen hohen Standards.
Großzügige und gut durchdachte Grundrisse bieten schöne Entfaltungsmöglichkeiten für die Bewohner.
Die vielen bodentiefen Fenster sorgen für reichlich Licht in den Räumen. Die geräumigen Balkone und (Dach-) Terrassen laden im Sommer zum Sonnenbaden und zu gemütlichen Grillabenden ein.
Zu jeder Wohnung gehört ein Kellerabteil sowie ein Tiefgaragenstellplatz. Auf Wunsch kann ein weiterer Stellplatz erworben werden.
Die Wohnungen werden PROVISIONSFREI verkauft!
Weitere Informationen erhalten Sie gerne auf Anfrage.
Adresse
Zacherlweg 5
82131 Gauting
9 Wohneinheiten
Preis: 455.700€ – 1.427.700€
Wohnfläche: ca. 48 m² – ca. 150 m²
Anzahl Zimmer: 2 – 4
Bezugstermin
Wohnungen können voraussichtlich
Anfang 2026 bezogen werden.
Finde deine Traumwohnung
Attraktive Wohnungen
Ausstattung
Neben den insgesamt 8 Tiefgaragen-Einzelstellplätze á 35.000,- €,
4 Doppelparkern á 30.000,- €, 1 Außenstellplatz á 25.000,- € hat die wunderschöne Wohnanlage viel zu bieten:
- Massivbauweise gemäß der Energiesparverordnung (Stand 2016)
- Großzügige Grundrissgestaltung
- Großzügige offene Wohn-/Küchenbereiche
- Eichen-Parkettböden in allen Wohn- und Schlafräumen
- Hochwertige Ausstattung und Gestaltung
- Personenaufzug vom UG (Tiefgarage) bis ins 2. OG
- Dachterrasse, Balkon oder Terrasse
- Elektrische Rollläden / Raffstoren
- hochwertige vollausgestattete Bäder
- Luft-/Wasser Wärmepumpe
- Fußbodenheizung in allen Räumen
- Kellerabteil
- Gemeinschaftsgarten
- Gemeinschaftlicher Kinderspielplatz
- insgesamt 8 Tiefgaragen-Einzelstellplätze, 4 Doppelparker, 1 Außenstellplatz
- Fahrradabstellplätze in der Tiefgarage
- Videosprechanlage mit Haustüröffner
Lage
Gauting ist Teil des Landkreises Starnberg und liegt südwestlich von München im idyllischen Würmtal. Zur Gemeinde gehören die Ortsteile Stockdorf, Grubmühl, Buchendorf, Königswiesen, Hausen, Unterbrunn und Oberbrunn. Im Osten grenzt Gauting an den weitläufigen Forstenrieder Park.
Mit der Eröffnung der Bahnstrecke von München nach Starnberg im Jahr 1854 kam der Aufstieg Gautings und im Jahr 1902 wurde die Villenkolonie gegründet. Durch seine ideale Lage zwischen der Großstadt München und dem Starnberger Fünfseenland ist Gauting bei Ruhe und Wohnraum suchenden Familien äußerst beliebt.
Durch die S-Bahn-Linie 6 und mehreren Buslinien ist Gauting hervorragend an den öffentlichen Nahverkehr angebunden. Die Bushaltestelle Buchendorfer Berg, befindet sich ca. 100 Meter vom Objekt entfernt. Der Bus bringt Sie in wenigen Minuten zur S-Bahn Station Gauting.
Auch die Nähe zur Autobahn A96 macht Gauting zu einem idealen Wohnort, auch für München-Affine.
Wohnungen
Sie sind interessiert an einer Wohnung?
Sie sind interessiert an einer Wohnung und möchten mehr erfahren? Kein Problem, wir sind gerne für Sie da. Füllen Sie einfach das Kontaktformular aus und wir werden uns schnellstmöglich bei Ihnen melden!
Übrigens! Der Verkauf erfolgt PROVISIONSFREI! Also schnell zuschlagen!
Hinweis:
Pläne und Prospekt: Die Darstellung von Grundrissen, Inneneinrichtungen und Ansichten in technischer, gestalterischer und architektonischer Art können abweichen. Dies gilt insbesondere für die Illustrationen in Prospekten sowie Print- und Onlinemedien. Die eingezeichneten Möblierungen sind lediglich Einrichtungsvorschläge des Planers und gehören nicht zum Leistungsumfang. Die Anordnung der Kücheneinbauten hat nur beispielhaften Charakter.
Treten Sie mit uns in Kontakt
Kontaktformular
Kontaktmöglichkeit
Gerne können Sie sich jederzeit auch telefonisch bei uns melden. Oder schicken Sie uns direkt eine E-Mail an folgende Kontaktdaten:
Gistlstr. 64
82049 Pullach i. Isartal
- +49 89 546 116 70
- info@fuchsbauprojekt.de